Impossible de charger la disponibilité du service de retrait
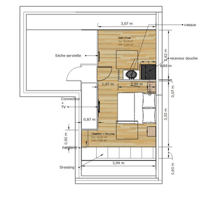
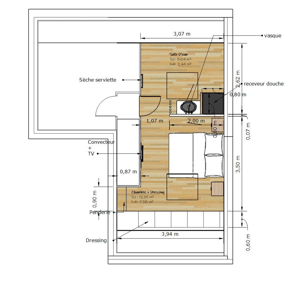
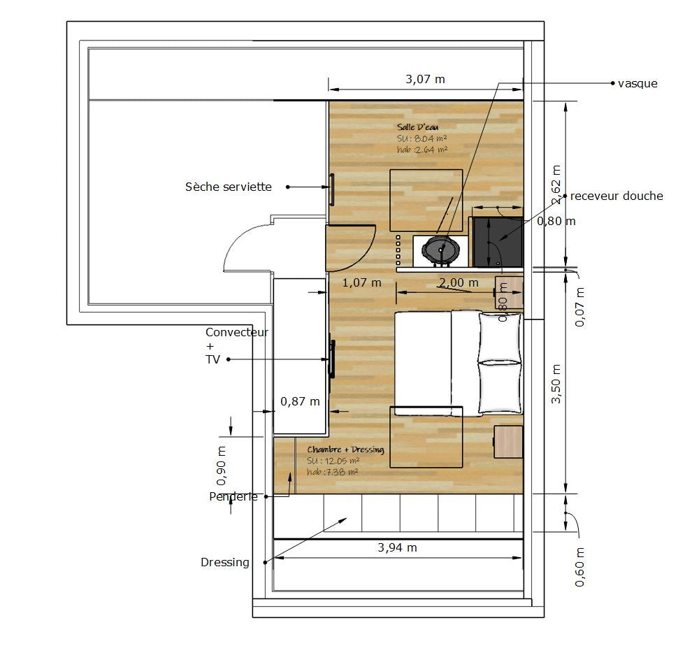
Proposition d’aménagement et de décoration d’une suite parentale dans un comble
souhaits des clients
- famille nombreuse
- Désirent une suite parentale
- ambiance cocooning,chaleureux, relax
Afficher tous les détails