Impossible de charger la disponibilité du service de retrait
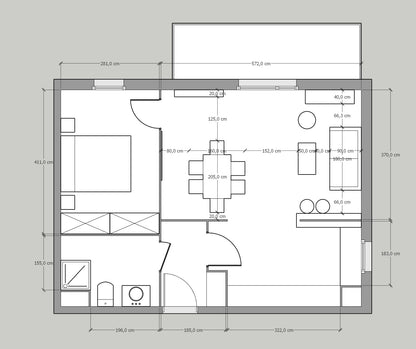
proposition de décoration d’un séjour dans un appartement T2
souhaits des clients :
- réorganisation des espaces
- aime la lecture (une bibliothèque)
- aiment recevoir les amis
- voyage souvent au Mexique
Afficher tous les détails