Passer aux informations produits
1 de 6

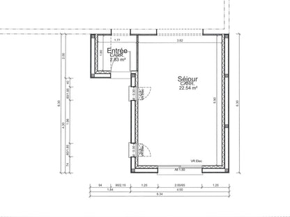
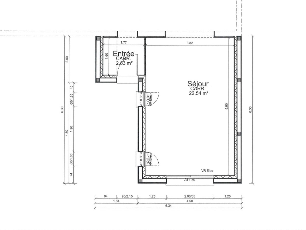
Création extension pavillon 

souhait des clients :

- revoir la distribution du logement , insertion d’une entrée délimitée qui n’était pas existante .
- agrandissement de la partie séjour qui était trop petite pour la famille 

Distributions :

RDC

Entrée 
Pièces de vie (Séjour ) 

Caractéristiques :

  • Brique BGV 
  • Laine de verre
  • Toit plat en EPDM 
  • Enduit traditionnel monocouche 
  • Menuiseries PVC et/ou ALU blanche 
Afficher tous les détails