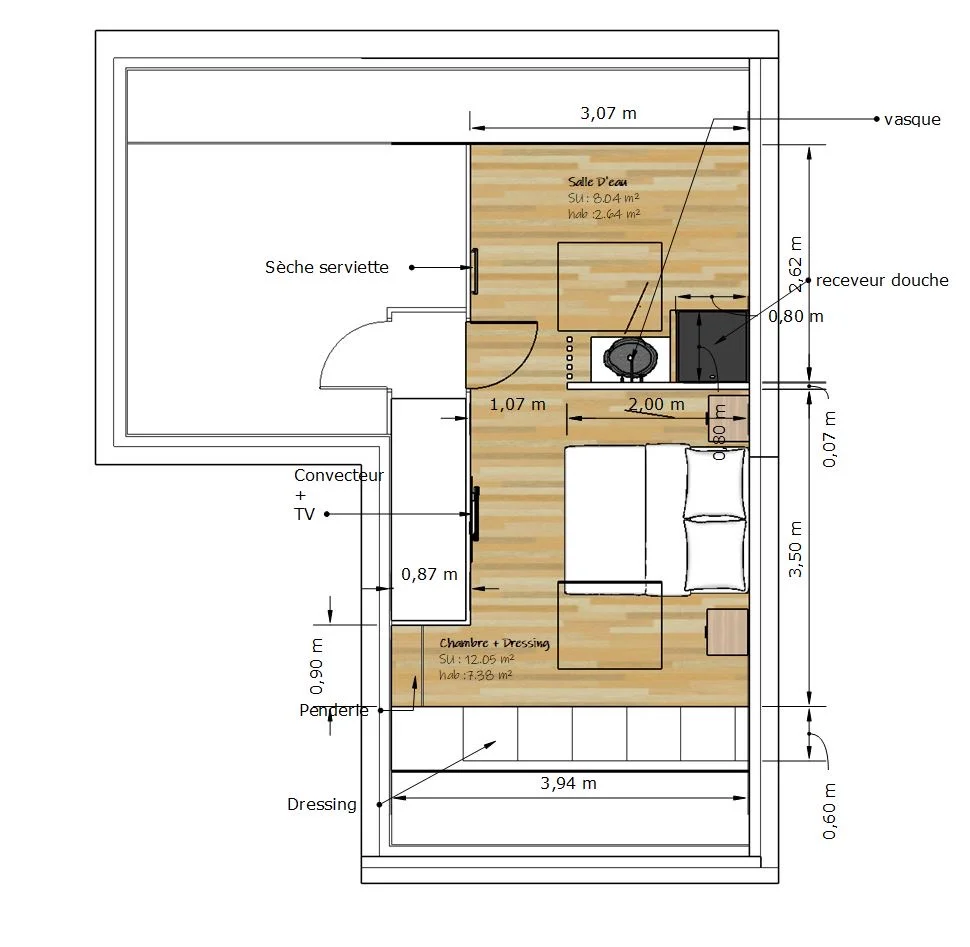
Suite parentale en combles
Le projet :
- Aménagement des combles — Transformation d’un espace sous pente en suite parentale complète
- Coin nuit — Une chambre cosy optimisant les volumes atypiques du comble
- Espace salle d’eau — Douche ou baignoire intégrée pour un confort optimal
- Ambiance cocooning — Matériaux chaleureux et teintes douces pour un refuge relaxant
Prestations proposées :
- Étude de faisabilité et conception 3D
- Optimisation des espaces sous pente
- Palette couleurs et matériaux enveloppants
- Sélection du mobilier adapté
- Choix des luminaires et textiles
- Planches tendances et shopping list
Envie d’un espace rien qu’à vous ? Discutons ensemble pour imaginer votre projet.
Un cocon parental à l’abri du quotidien
Dans une famille nombreuse, disposer d’un espace préservé devient essentiel. Ce projet transforme des combles inexploités en une véritable suite parentale, un refuge chaleureux où se ressourcer loin de l’agitation du foyer.
L’ambiance cocooning se traduit par des tons neutres et enveloppants, des matières douces comme le lin et le velours, et un éclairage tamisé. Les contraintes des sous-pentes deviennent des atouts : rangements intégrés, alcôves intimistes et volumes singuliers qui confèrent à cet espace tout son caractère. Un havre de paix pensé pour la détente et le bien-être.






