Création d’une extension de pavillon
Souhaits des clients :
- Revoir la distribution du logement avec une entrée clairement délimitée
- Agrandir le séjour pour plus de confort familial
Distribution des espaces :
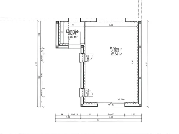
- Entrée — Nouvel espace d’accueil fonctionnel séparant l’extérieur des pièces de vie
- Séjour — Pièce de vie agrandie, lumineuse et adaptée aux besoins de la famille
Caractéristiques techniques :
- Brique BGV et isolation laine de verre
- Toit plat en membrane EPDM
- Enduit traditionnel monocouche
- Menuiseries PVC et/ou aluminium blanc
Vous souhaitez agrandir votre maison ? N’hésitez pas à me contacter pour étudier votre projet d’extension.
Repenser l’espace pour mieux vivre au quotidien
Ce projet d’extension de pavillon répondait à deux besoins essentiels : créer une véritable entrée délimitée, inexistante jusqu’alors, et agrandir le séjour devenu trop étroit pour la famille. L’objectif était de transformer la circulation intérieure tout en gagnant en surface habitable.
L’extension en toit plat EPDM s’intègre naturellement au pavillon existant. Les menuiseries blanches en PVC et aluminium apportent luminosité et modernité à l’ensemble, tout en garantissant une excellente isolation thermique.





